SHE

SHE

A tribute to Italian nautical artistry, SHE embodies timeless elegance, master craftsmanship, and a vision of yachting that flows to the rhythm of time.

SHE reveals herself in quiet beauty — not through spectacle, but through presence.

Every line, every curve, every reflection is a whisper of a new way to experience the sea. SHE is a return to yachting in its purest form: slow, intentional, effortless.

Where heritage and innovation meet in perfect harmony.

Gallery

View

Exteriors

View

Interiors

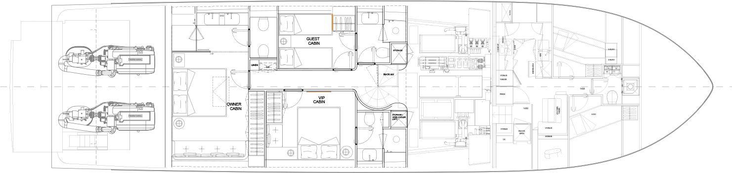
Layouts

Video

Brochure

Specifications


Length overall
25.50 m
Maximum beam
6.50 m
Guest accommodation
6 people
Crew accommodation
3 people
Engines
Twin IPS30 - Twin 1000
Maximum speed (approx.)
20 knots
Cruising speed (approx.)
17 knots
Economical speed (approx.)
10 knots
Range at cruising speed (approx.)
500 nm